COVID 19 - guidelines pour l'aménagement des espaces de travail.
Dès le début de la pandémie, nous nous sommes penchés sur la réorganisation d'espaces de travail pour répondre aux exigences sanitaires.
Si la crise de Corona nous a rappelé une chose, c’est que la protection de la vie est la plus haute priorité. Depuis longtemps, nous propageons l’utilisation durable des ressources matérielles. En raison de la pandémie, la santé humaine a une fois de plus été mise au centre des intérêts. Pour le transférer dans le monde du travail : le bien-être et la sécurité des salariés est un atout de grande valeur qui doit être préservé durablement.
L'obligation de repenser les espaces de travail
Un processus de réflexion intensif est actuellement en cours. L’employé ne doit être exposé à aucun risque d’infection sur le lieu de travail. Un retour au bureau tel qu’il était avant Corona n’est pas possible en principe, de sorte que le Home Office est soudainement non seulement un modèle de travail accepté mais aussi un modèle de travail préféré. Afin de pouvoir offrir aux employés une sécurité durable après leur retour au bureau, des adaptations plus ou moins importantes doivent être effectuées. Le bureau du futur a été doté d’une nouvelle fonction à cet égard : Résistance à la pandémie ! En effet, le risque d’infection dans les salles fermées, surtout sur une longue période, est très élevé.
En tant que bureau d’architectes, la crise actuelle, qui est loin d’être terminée, nous touche comme n’importe quel autre secteur. L’aménagement des espaces étant notre compétence principale, nous sommes en première ligne lorsqu’il s’agit de développer un aménagement de bureau résistant aux pandémies. Pour nous-mêmes comme pour nos clients. C’est pourquoi nous avons élaboré très tôt des études de conception appropriées pour différentes typologies de bureaux. L’accent est mis ici sur l’obligation pour les employés de ne pas porter en permanence un protecteur buccal et nasal, mais uniquement dans des situations isolées. Le respect des mesures d’hygiène (lavage régulier des mains, toux et éternuements dans le creux du bras, etc.).
Passer à l'action, les premières étapes
Que peut-on donc faire pour rendre le bureau plus sain après le retour du Lockdown ?
Il est déjà possible de réaliser beaucoup de choses avec des mesures durables à petit budget, telles que :
- Établir des règles claires, en informer les employés et les visiteurs par écrit et oralement
- Introduire le fonctionnement par équipes en combinaison avec le bureau à domicile et, si nécessaire, redistribuer les bureaux de manière à ce que les services/groupes de travail puissent travailler en une seule équipe
- Réorganiser les plans de manière à ce que les chemins des personnes sur place se croisent le moins possible
- Marquer le tracé avec des panneaux appropriés
- Désinfection régulière des surfaces et des objets, idéalement pas de partage d’objets
- Fixation d’éléments de séparation tels que les panneaux OSB
- N’utiliser que des locaux efficacement ventilés
- Éviter les ascenseurs comme « pièges à virus »
- Fournir des désinfectants et des masques de protection
- Réduire le temps que les employés passent ensemble dans une même pièce
Investissements plus importants :
- Échange contre des modèles fonctionnant sans contact (portes, robinets)
- Adaptation des systèmes de ventilation (il est important de passer de l’air recirculé à l’air frais), utilisation de filtres à air efficaces (HEPA = High Efficiency Particulate Airfilter)
Aller plus loin avec BELVEDERE Architecture!
Pour vous aider dans votre réflexion nous vous invitons déjà à consulter notre dossier spécial COVID-19.
Pour une consultation individuelle, nous sommes à votre disposition : info@belvedere.lu ou t. + 352 26 34 06 10.

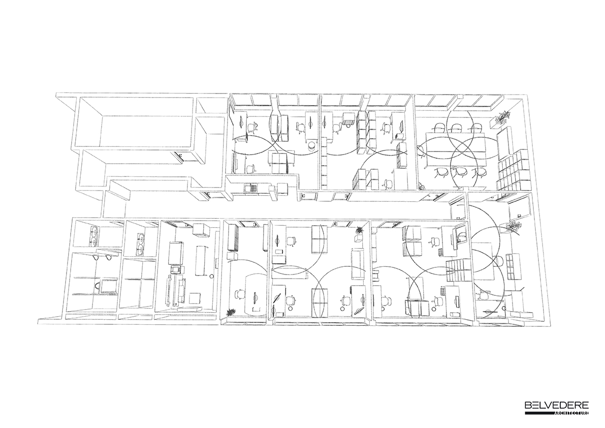
Nos bureaux avant Corona.

Nos bureaux avec Corona. Les espaces ont été modifiés afin que nos employés puissent travailler dans la plus grande sécurité possible.